Данные объекта
GR1597
Цена295.000 €
Регион Греция / Аттика
ТипТаунхаус
Площадь120 м2
Приусадебный участок250 м2
Комнат3
Дополнительные параметры
Индивидуальное отопление
Состояние :  Хорошее

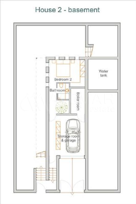
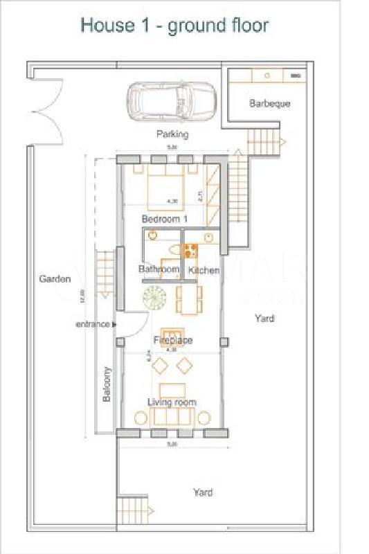
В комплексе 4 таунхауса.

Площадь каждоготаунхауса: 120 кв.м, имеют два уровня.

Помещения: две спальни, две ванные комнаты, салон с камином в стиле «модерн», кухня, хозяйственное помещение, веранды с видом на море.

Площадь сада для каждого из таунхаусов: 250 кв.м.

Оснащение и оборудование таунхаусов: современная итальянская кафельная плитка и сантехника, встроенные стенные шкафы в спальнях, встроенная кухонная мебель, система автономного отопления, солнечная батарея, барбекю в саду, полное благоустройство участка, парковочные места.

Стоимость: 295.000 евро.

Местоположение объекта на карте
Оставить заявку по данному объекту или Добавить в закладки
Галина Гострофиду
Менеджер по продаже
Греция Салоники
Эгнатия 84, 2 этаж
📞
(+30) 2310-250065